
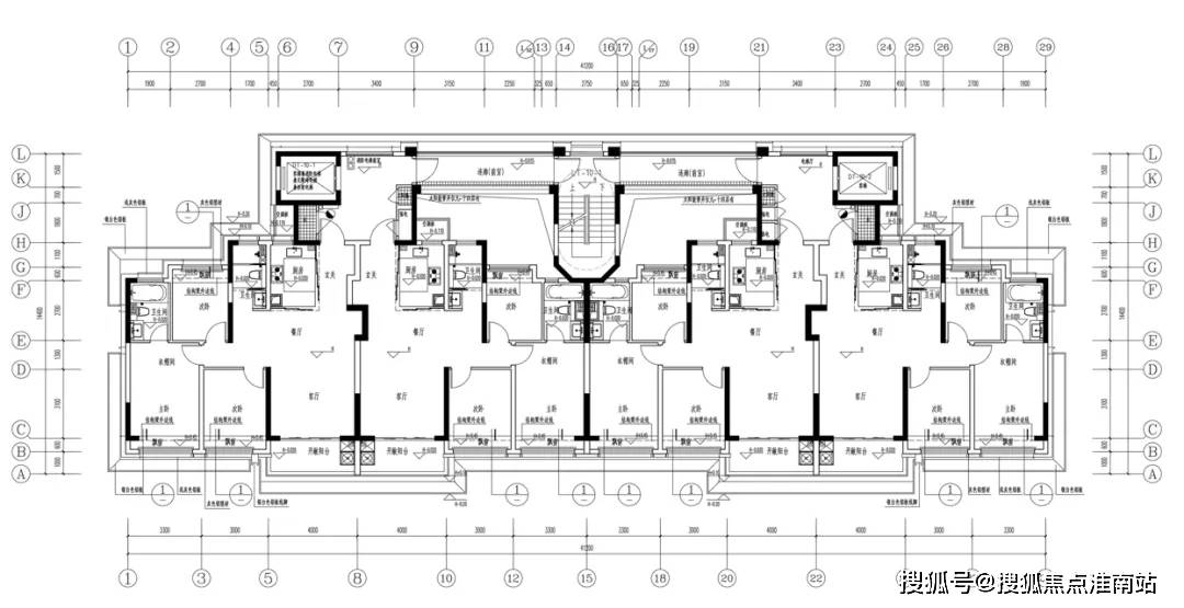
两个朝南卧室,
姑苏建屋·新棠玥售楼处德律风☎:【开辟商售楼处预定看房热线】(一对一热情vip办事)建屋·新棠玥售楼处德律风→姑苏建屋·新棠玥售楼核心德律风→楼盘百科→建屋·新棠玥首页网坐→楼盘百科→首页网坐→24小时热线看房请提前致电预定,此中两个套房卧室,周末日常平凡都是很好的去向。一个北向卧室,距离独墅湖很近,楼面价约2.2w/㎡。这块地接近独墅湖大学城,我们供给专业的一对一热情办事,全屋飘窗,只要预定客户才能享受开辟商供给的内部优惠以及专属的老客户保举励!值得一提的是,姑苏建屋·新棠玥售楼处德律风☎:【开辟商售楼处预定看房热线】(一对一热情vip办事)
教育资本:中外大学浩繁,客堂开间约6.9米,4开间朝南,出门南边就是独墅湖大道,可享受内部渠道优惠!看房请务必提前致电发卖确认时间,出行很便利。帮您以专业视角挑选抱负的房产!
满脚一家三口栖身需求。南向从卧套房设想,可满脚三代同堂的栖身需求。